Attention aux piratages ! Gardez à l’esprit qu’aucune de nos agences ne vous demandera de payer pour vous faire visiter un bien. En cas de doutes, contacter directement nos agences par téléphone.

3
Estimer mon bien tæ
Accueil > Louer >

Location appartement t2 47 m² à Nantes (44200) Sud-Lion d'Or - Sèvre 637,52 € / mois CC

< Revenir à la page précédente
< Précédente Annonce Suivante >
Vous désirez partager ce bien ou créer une alerte mail
G s t x I

Appartement 2 pièces à louer

Nantes (44200) - Sud-Lion d'Or - Sèvre | Réf. : LOCA863_022

Loyer : 637,52 € / mois CC

Loyer Hors Charges : 590 €

Charges : 48 €

Dépôt de garantie : 589,52 €

S
1 chambre
£
1 salle d'eau
7
47 m²
1
1 parking

(CC) : Charges Comprises

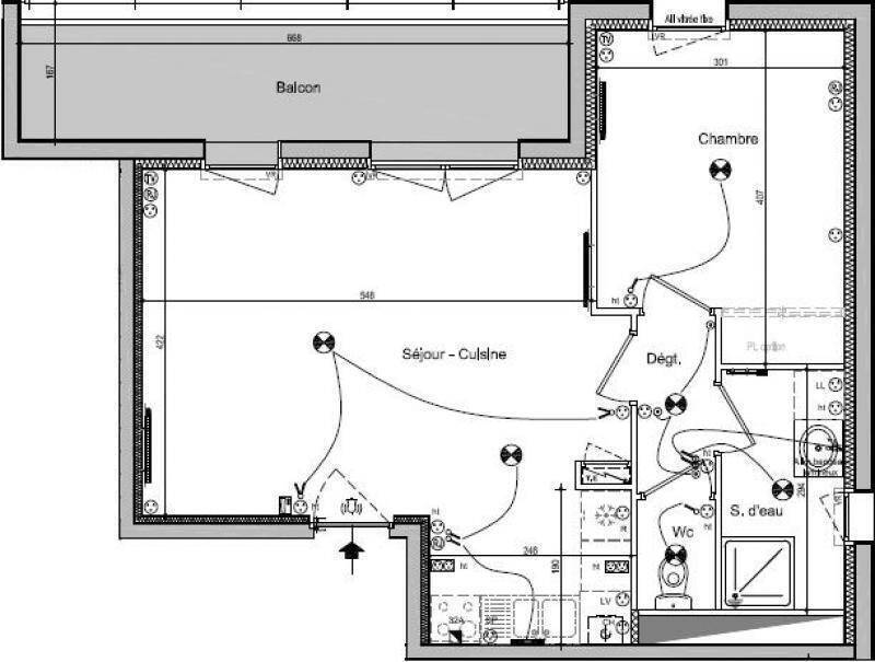
SUD LOIRE - Dans le quartier SAINT - JACQUES à NANTES A louer un dans une résidence calme et sécurisée appartement de type 2 au premier étage sans ascenseur, composé d'un séjour, d'une cuisine ouvrant sur un grand balcon, une chambre séparée avec un placard, une salle d'eau et un WC séparé. Garage privatif fermé. Chauffage et eau chaude au gaz. L'eau froide, l'électricité et le gaz ne sont pas dans les charges. L'entretien des communs est compris dans les charges. Au Groupe CIF, il n'y pas de frais d'agence pour les locataires, nous vous demandons donc plus d'autonomie dans votre recherche. La première étape pour louer ce logement est de vérifier votre solvabilité. Pour cela, allez sur le site du Groupe CIF, puis sur la page du logement qui vous intéresse, enfin testez votre éligibilité via notre simulateur accessible via le bouton "Demande d'information". Si le simulateur indique que vous pourriez louer ce logement, appelez le numéro prioritaire (dédié à ceux qui ont complété le test, il apparaît à la fin de celui-ci) pour connaitre les modalités de visites. Sinon le simulateur vous invitera à rechercher une autre location adaptée à votre budget.
Surface habitable : 47 m²
Surface séjour : 28 m²
Salle d'eau : 1
Nbre de parking : 1

Diagnostic des performances énergétiques du bien

Consommation énergétique
 
53 *
 
 
 
 
 
Indice de mesure : kWhEP/m²/an
Taux d'émission de gaz à effet de serre
 
 
12 *
 
 
 
 
Indice de mesure : kg éqCO2/m²/an

Estimation des coûts annuels d’énergie du logement : 0 € par an
Prix moyens des énergies indexés sur l'année 0 (abonnements compris)

DPE ANCIENNE VERSION

Loyer : 637,52 € / mois CC

Loyer Hors Charges : 590 €

Charges : 48 €

Dépôt de garantie : 589,52 €

S
1 chambre
£
1 salle d'eau
7
47 m²
1
1 parking

(CC) : Charges Comprises

Nous appeler
Abonnez-vous à nos offres spéciales investisseurs

Localisation & services de proximité

Biens visités


Nous contacter pour ce bien
Laissez-nous vos coordonnées

J'envisage aussi de mettre un bien à la vente

Obtenir une estimation
J’accepte de recevoir des informations sur l’immobilier, les nouvelles réglementations et les nouvelles offres et produits personnalisés de IMMO de France**.

Si vous cochez non, vous indiquez que vous ne souhaitez pas recevoir de lettre d’information sur l'actualité de l’immobilier, les offres et produits du réseau IMMO de France

En cliquant sur Envoyer vous acceptez de recevoir des informations concernant le bien présenté ci-dessus et des offres similaires susceptibles de vous intéresser.

*Champs obligatoires
**Recueil de vos informations personnelles afin de pouvoir gérer la relation client et apporter conseils et informations complémentaires au niveau de la marque IMMO de France et le cas échéant au niveau des partenaires et prestataires. Les données transmises via ce formulaire sont destinées uniquement au personnel de IMMO de France et sont conservées pour une durée n’excédant pas celle nécessaire à la réalisation des finalités précitées.
Conformément au Règlement européen n°2016/679/UE du 27 avril 2016 sur la protection des données personnelles et à la loi « informatique et libertés » du 6 janvier 1978 modifiée, vous disposez d'un droit d'interrogation d'accès, de rectification, d’effacement, de portabilité et de limitation du traitement des données vous concernant ainsi que du droit de communiquer des directives sur le sort de vos données après votre mort. Vous avez également la possibilité de vous opposer au traitement des données vous concernant pour motifs légitimes. Vous pouvez exercer ce droit par courrier électronique adressé à: service.communication@immodefrance.com ou par courrier PROCIVIS Immobilier 87 Quai Panhard et Levassor 75013 PARIS, accompagné d'une copie d'un titre d'identité. Par ailleurs, si vos coordonnées téléphoniques ont été recueillies, vous pouvez vous inscrire sur la liste d’opposition au démarchage téléphonique prévue en faveur des consommateurs par l’article L223-1 du code de la consommation. Pour plus d'informations consulter nos Mentions légales

Nous vous accompagnons pour réaliser
au mieux votre projet immobilier

CIF Services

11 rue basse porte

44000 - Nantes

Horaires, équipes Nous appeler Nous contacter Localiser l'agence
t Alerte mail j Simulateur de prêt
cookie