Attention aux piratages ! Gardez à l’esprit qu’aucune de nos agences ne vous demandera de payer pour vous faire visiter un bien. En cas de doutes, contacter directement nos agences par téléphone.

3
Estimer mon bien tæ
Accueil > Acheter >

Vente appartement 2 pièces 33 m² à Lyon 7e Arrondissement (69007)

< Revenir à la page précédente
< Précédente Annonce Suivante >

Appartement 2 pièces à vendre

Lyon 7e Arrondissement (69007) | Réf. : 269

Prix de vente : 140 000 €

Honoraires à charge vendeur

Calcul du financement

S
1 chambre

£
1 salle d'eau

7
33 m²

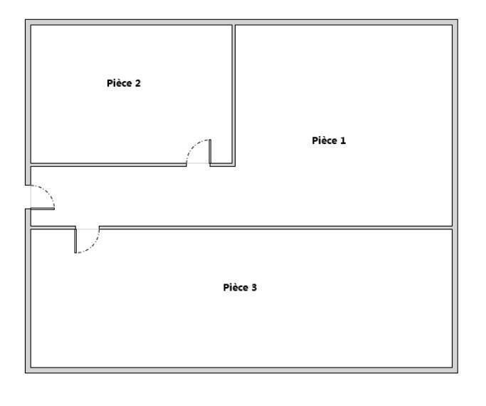
Situé 57 rue Saint Michel à 3 minutes du métro Saxe Gambetta et de la Place Saint Louis , venez découvrir cet appartement de 22 M² carrez + 11 M² au sol situé au 4ème et dernier étage d'un immeuble de 1800.

Le DPE est actuellement en "E" mais la réforme de janvier 2026 va le passer en "D" car l'appartement est tout à l'électrique.

Charges de copropriétés : 15 euros par mois pour l'entretien des parties communes.

L'eau froide est individuelle, l'eau chaude et le chauffage sont individuels électriques.

Contactez Monsieur VAIRON au O6 O3 O6 58 O8.
Copropriété de 38 lots - dont 38 lots habitation. (Pas de procédure en cours).

Charges annuelles : 180 euros.
Surface habitable : 33 m²
Type chauffage : Individuel
Taxe foncière : 350 €

Infos copropriété

Nbre de lots : 38
Charges prévisionnelles : 180 € / an
Les informations sur les risques auxquels ce bien est exposé sont disponibles sur le site Géorisques : www.georisques.gouv.fr

Diagnostic de performance énergétique

E
v Date de réalisation : 21/03/2023
Classe énergie
E
296 kWh/m².an
Classe climat
B
9 kg CO2/m².an

Prix de vente : 140 000 €

Honoraires à charge vendeur

Calcul du financement

S
1 chambre

£
1 salle d'eau

7
33 m²

Nous appeler
Abonnez-vous à nos offres spéciales investisseurs

Localisation & services de proximité

Biens similaires

Appartement - 1 pièce
Lyon 7e Arrondissement (69007)
Appartement - 1 pièce
Lyon 7e Arrondissement (69007)

Nous contacter pour ce bien
Laissez-nous vos coordonnées

J'envisage aussi de mettre un bien à la vente

Obtenir une estimation
J’accepte de recevoir des informations sur l’immobilier, les nouvelles réglementations et les nouvelles offres et produits personnalisés de IMMO de France**.

Si vous cochez non, vous indiquez que vous ne souhaitez pas recevoir de lettre d’information sur l'actualité de l’immobilier, les offres et produits du réseau IMMO de France

En cliquant sur Envoyer vous acceptez de recevoir des informations concernant le bien présenté ci-dessus et des offres similaires susceptibles de vous intéresser.

*Champs obligatoires
**Recueil de vos informations personnelles afin de pouvoir gérer la relation client et apporter conseils et informations complémentaires au niveau de la marque IMMO de France et le cas échéant au niveau des partenaires et prestataires. Les données transmises via ce formulaire sont destinées uniquement au personnel de IMMO de France et sont conservées pour une durée n’excédant pas celle nécessaire à la réalisation des finalités précitées.
Conformément au Règlement européen n°2016/679/UE du 27 avril 2016 sur la protection des données personnelles et à la loi « informatique et libertés » du 6 janvier 1978 modifiée, vous disposez d'un droit d'interrogation d'accès, de rectification, d’effacement, de portabilité et de limitation du traitement des données vous concernant ainsi que du droit de communiquer des directives sur le sort de vos données après votre mort. Vous avez également la possibilité de vous opposer au traitement des données vous concernant pour motifs légitimes. Vous pouvez exercer ce droit par courrier électronique adressé à: service.communication@immodefrance.com ou par courrier PROCIVIS Immobilier 87 Quai Panhard et Levassor 75013 PARIS, accompagné d'une copie d'un titre d'identité. Par ailleurs, si vos coordonnées téléphoniques ont été recueillies, vous pouvez vous inscrire sur la liste d’opposition au démarchage téléphonique prévue en faveur des consommateurs par l’article L223-1 du code de la consommation. Pour plus d'informations consulter nos Mentions légales

t Alerte mail j Simulateur de prêt
cookie