Attention aux piratages ! Gardez à l’esprit qu’aucune de nos agences ne vous demandera de payer pour vous faire visiter un bien. En cas de doutes, contacter directement nos agences par téléphone.

3
Estimer mon bien tæ
Accueil > Acheter >

Vente appartement 2 pièces 54.99 m² à Montpellier (34000)

< Revenir à la page précédente
< Précédente Annonce Suivante >

Appartement 2 pièces à vendre

Montpellier (34000) | Réf. : O1240075121 | N° 6051

Prix de vente : 319 000 € HAI

Prix de vente honoraires exclus : NC
Honoraires à charge acquéreur

Calcul du financement

S
1 chambre

U
1 salle de bain

7
54.99 m²

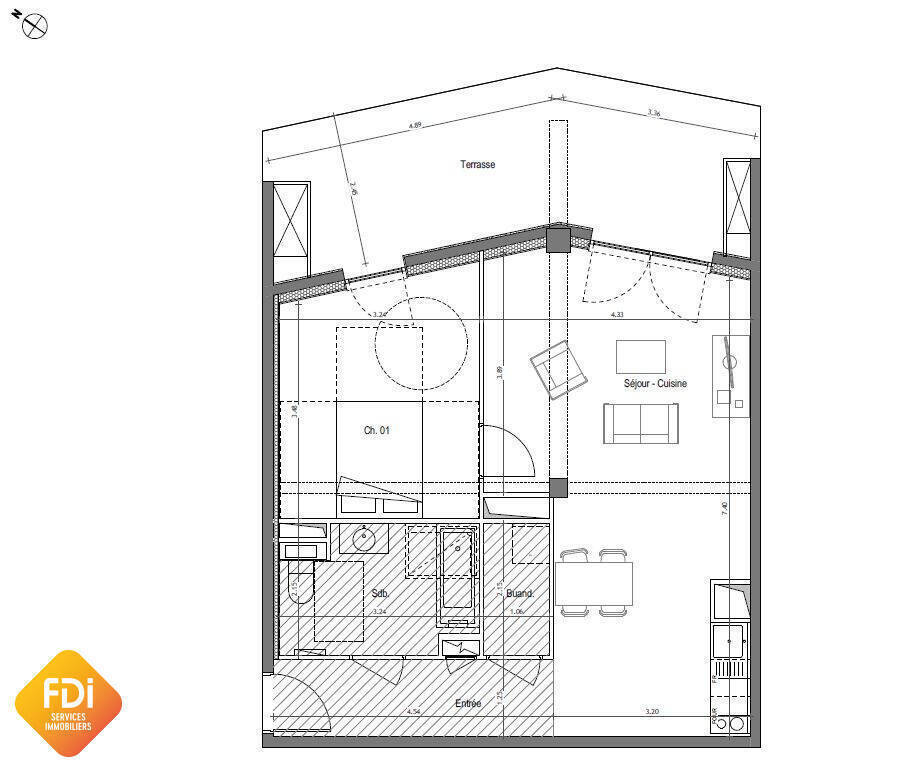
Dans une résidence neuve et au coeur du quartier Port Marianne, votre agence FDI Services Immobiliers Opéra-Comédie vous propose, de spacieux appartements aux prestations soignées comprenant de beaux espaces de vie et de larges terrasses. Ici c'est un beau T2 de 55m2 situé au troisème étage qui s'offre à vous, avec un bel espace de vie de 28 m2 donnant sur une terrasse de pratiquement 20m2. Situé à Montpellier, vous bénéficierez du dynamisme de la ville et vous aurez une proximité aux bassin Jacques Coeur, aux écoles, supermarchés, pharmacies, bureaux de Poste et de toutes commodités. Pour plus de renseignements contactez votre agence au 04.67.69.70.02. Choix 1
Surface habitable : 54.99 m²
Surface séjour : 28.46 m²

Diagnostic des performances énergétiques du bien

dpe.etat.

Prix de vente : 319 000 € HAI

Prix de vente honoraires exclus : NC
Honoraires à charge acquéreur

Calcul du financement

S
1 chambre

U
1 salle de bain

7
54.99 m²

Nous appeler
Abonnez-vous à nos offres spéciales investisseurs

Localisation & services de proximité

D'autres 2 pièces à Montpellier

Appartement - 2 pièces
Montpellier (34000)

Nous contacter pour ce bien
Laissez-nous vos coordonnées

J'envisage aussi de mettre un bien à la vente

Obtenir une estimation
J’accepte de recevoir des informations sur l’immobilier, les nouvelles réglementations et les nouvelles offres et produits personnalisés de IMMO de France**.

Si vous cochez non, vous indiquez que vous ne souhaitez pas recevoir de lettre d’information sur l'actualité de l’immobilier, les offres et produits du réseau IMMO de France

En cliquant sur Envoyer vous acceptez de recevoir des informations concernant le bien présenté ci-dessus et des offres similaires susceptibles de vous intéresser.

*Champs obligatoires
**Recueil de vos informations personnelles afin de pouvoir gérer la relation client et apporter conseils et informations complémentaires au niveau de la marque IMMO de France et le cas échéant au niveau des partenaires et prestataires. Les données transmises via ce formulaire sont destinées uniquement au personnel de IMMO de France et sont conservées pour une durée n’excédant pas celle nécessaire à la réalisation des finalités précitées.
Conformément au Règlement européen n°2016/679/UE du 27 avril 2016 sur la protection des données personnelles et à la loi « informatique et libertés » du 6 janvier 1978 modifiée, vous disposez d'un droit d'interrogation d'accès, de rectification, d’effacement, de portabilité et de limitation du traitement des données vous concernant ainsi que du droit de communiquer des directives sur le sort de vos données après votre mort. Vous avez également la possibilité de vous opposer au traitement des données vous concernant pour motifs légitimes. Vous pouvez exercer ce droit par courrier électronique adressé à: service.communication@immodefrance.com ou par courrier PROCIVIS Immobilier 87 Quai Panhard et Levassor 75013 PARIS, accompagné d'une copie d'un titre d'identité. Par ailleurs, si vos coordonnées téléphoniques ont été recueillies, vous pouvez vous inscrire sur la liste d’opposition au démarchage téléphonique prévue en faveur des consommateurs par l’article L223-1 du code de la consommation. Pour plus d'informations consulter nos Mentions légales

Nous vous accompagnons pour réaliser
au mieux votre projet immobilier

FDI SERVICES IMMOBILIERS Mas Drevon

74 boulevard Pedro de la Luna

34000 - Montpellier

Horaires, équipes Nous appeler Nous contacter Localiser l'agence
t Alerte mail j Simulateur de prêt
cookie