Attention aux piratages ! Gardez à l’esprit qu’aucune de nos agences ne vous demandera de payer pour vous faire visiter un bien. En cas de doutes, contacter directement nos agences par téléphone.

3
Estimer mon bien tæ
Accueil > Acheter >

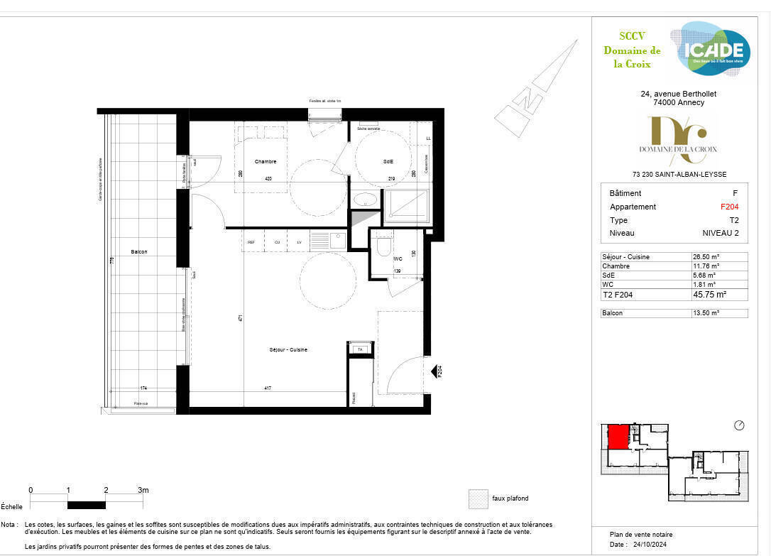
Vente appartement 2 pièces 45.75 m² à Saint-Alban-Leysse (73230)

< Revenir à la page précédente
< Précédente Annonce Suivante >

Appartement 2 pièces à vendre

Saint-Alban-Leysse (73230) | Réf. : neuf3470

Prix de vente : 228 500 €

Honoraires à charge vendeur

Calcul du financement

S
1 chambre

7
45.75 m²

La campagne à la ville.
Une future adresse de prestige pour cette résidence à St Alban Leysse, qui vous propose 75 logements répartis sur 7 petits bâtiments, dans une ambiance intimiste.
Ce T2 situé au 2ème étage offre 45.75m² et un balcon de 13.5m², avec une exposition sud-ouest.
L'appartement propose un séjour cuisine de 26.5m² avec une baie coulissante, une chambre dans laquelle l'aménagement d'un placard est naturel et préparé, les 2 pièces donnant accès au balcon, un placard dans l'entrée, une salle d'eau et un WC indépendant.
En annexe, une cave en sous-sol au prix de 2000 euros.
Possibilité d'avoir un garage fermé en sous-sol pour 20 000 euros.
Frais de notaire réduits à seulement 5200 euros.
Belles prestations avec la baie coulissante qui amène une modernité et une praticité différenciantes, es volets roulants électriques et un WC suspendu, entre autres.

Copropriété de 75 lots - dont 75 lots habitation. (Pas de procédure en cours).

Charges annuelles : 806 euros.
Surface habitable : 45.75 m²

Infos copropriété

Nbre de lots : 75
Charges prévisionnelles : 806 € / an

Diagnostic des performances énergétiques du bien

En attente du nouveau DPE

Prix de vente : 228 500 €

Honoraires à charge vendeur

Calcul du financement

S
1 chambre

7
45.75 m²

Nous appeler
Abonnez-vous à nos offres spéciales investisseurs

Localisation & services de proximité

Biens similaires

Appartement - 5 pièces
Saint-Alban-Leysse (73230)

Nous contacter pour ce bien
Laissez-nous vos coordonnées

J'envisage aussi de mettre un bien à la vente

Obtenir une estimation
J’accepte de recevoir des informations sur l’immobilier, les nouvelles réglementations et les nouvelles offres et produits personnalisés de IMMO de France**.

Si vous cochez non, vous indiquez que vous ne souhaitez pas recevoir de lettre d’information sur l'actualité de l’immobilier, les offres et produits du réseau IMMO de France

En cliquant sur Envoyer vous acceptez de recevoir des informations concernant le bien présenté ci-dessus et des offres similaires susceptibles de vous intéresser.

*Champs obligatoires
**Recueil de vos informations personnelles afin de pouvoir gérer la relation client et apporter conseils et informations complémentaires au niveau de la marque IMMO de France et le cas échéant au niveau des partenaires et prestataires. Les données transmises via ce formulaire sont destinées uniquement au personnel de IMMO de France et sont conservées pour une durée n’excédant pas celle nécessaire à la réalisation des finalités précitées.
Conformément au Règlement européen n°2016/679/UE du 27 avril 2016 sur la protection des données personnelles et à la loi « informatique et libertés » du 6 janvier 1978 modifiée, vous disposez d'un droit d'interrogation d'accès, de rectification, d’effacement, de portabilité et de limitation du traitement des données vous concernant ainsi que du droit de communiquer des directives sur le sort de vos données après votre mort. Vous avez également la possibilité de vous opposer au traitement des données vous concernant pour motifs légitimes. Vous pouvez exercer ce droit par courrier électronique adressé à: service.communication@immodefrance.com ou par courrier PROCIVIS Immobilier 87 Quai Panhard et Levassor 75013 PARIS, accompagné d'une copie d'un titre d'identité. Par ailleurs, si vos coordonnées téléphoniques ont été recueillies, vous pouvez vous inscrire sur la liste d’opposition au démarchage téléphonique prévue en faveur des consommateurs par l’article L223-1 du code de la consommation. Pour plus d'informations consulter nos Mentions légales

Nous vous accompagnons pour réaliser
au mieux votre projet immobilier

CIS Immobilier Pont De Beauvoisin

2, Place Centrale

73330 - Le Pont-de-Beauvoisin

Horaires, équipes Nous appeler Nous contacter Localiser l'agence
t Alerte mail j Simulateur de prêt
cookie