Attention aux piratages ! Gardez à l’esprit qu’aucune de nos agences ne vous demandera de payer pour vous faire visiter un bien. En cas de doutes, contacter directement nos agences par téléphone.

3
Estimer mon bien tæ
Accueil > Acheter >

Vente appartement 2 pièces 40 m² à Val-de-Reuil (27100)

< Revenir à la page précédente
< Précédente Annonce Suivante >

Appartement 2 pièces à vendre

Val-de-Reuil (27100) | Réf. : 8609 | N° 11735

Prix de vente : 137 751 €

Honoraires à charge vendeur

Calcul du financement

S
1 chambre

£
1 salle d'eau

7
40 m²

1
1 parking

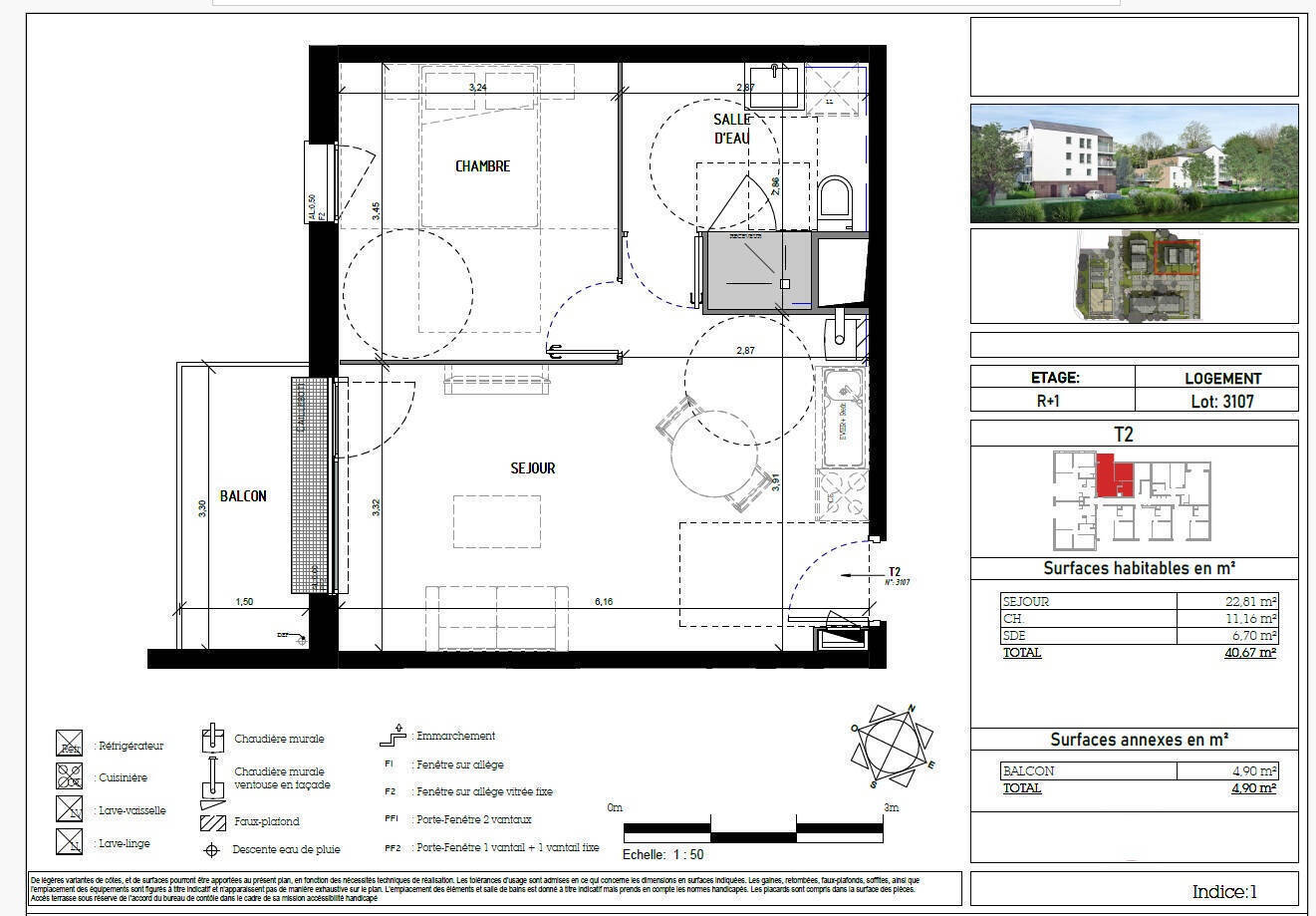
VAL-DE-REUIL - T2 AVEC JARDIN ET/OU BALCON ET PARKING

A moins de 5 minutes de la gare SNCF, des commerces et des établissements scolaires, découvrez ce bel appartement T2 situé dans un immeuble moderne avec ascenseur, au coeur d'un quartier calme et en plein renouveau. D'une superficie d'environ 40 m², il se compose d'un séjour lumineux avec cuisine ouverte, d'une chambre confortable, d'une salle d'eau avec WC, ainsi que d'un balcon de 4 m² idéal pour profiter des beaux jours.
Une place de parking privative complète ce bien.

L'appartement, conforme aux normes PMR, offre une excellente performance énergétique (classe A ou B), garantissant confort et économies au quotidien. Les futurs acquéreurs bénéficieront de nombreux avantages financiers : TVA à 5,5 %, frais de notaire réduits (2.3%), éligibilité au Prêt à Taux Zéro et prime de 5 000 euros accordée par l'agglomération Seine-Eure. Aucun travaux à prévoir et un faible coût d'énergie pour une acquisition en toute sérénité.

Proposé à partir de 135 000 euros, cet appartement permet de devenir propriétaire pour environ 600 euros/mois* (hors assurance de prêt).
Un bien idéal pour une première acquisition dans un environnement agréable, à proximité directe de l'autoroute A13 (Paris/Rouen).

*Exemple pour l'achat d'un 2 pièces avec conditions d'achat en résidence principale et de ressources.

Photos non contractuelles
Surface habitable : 40 m²
Nbre de parking : 1

Diagnostic des performances énergétiques du bien

En attente du nouveau DPE

Prix de vente : 137 751 €

Honoraires à charge vendeur

Calcul du financement

S
1 chambre

£
1 salle d'eau

7
40 m²

1
1 parking

Nous appeler
Abonnez-vous à nos offres spéciales investisseurs

Localisation & services de proximité

Nous contacter pour ce bien
Laissez-nous vos coordonnées

J'envisage aussi de mettre un bien à la vente

Obtenir une estimation
J’accepte de recevoir des informations sur l’immobilier, les nouvelles réglementations et les nouvelles offres et produits personnalisés de IMMO de France**.

Si vous cochez non, vous indiquez que vous ne souhaitez pas recevoir de lettre d’information sur l'actualité de l’immobilier, les offres et produits du réseau IMMO de France

En cliquant sur Envoyer vous acceptez de recevoir des informations concernant le bien présenté ci-dessus et des offres similaires susceptibles de vous intéresser.

*Champs obligatoires
**Recueil de vos informations personnelles afin de pouvoir gérer la relation client et apporter conseils et informations complémentaires au niveau de la marque IMMO de France et le cas échéant au niveau des partenaires et prestataires. Les données transmises via ce formulaire sont destinées uniquement au personnel de IMMO de France et sont conservées pour une durée n’excédant pas celle nécessaire à la réalisation des finalités précitées.
Conformément au Règlement européen n°2016/679/UE du 27 avril 2016 sur la protection des données personnelles et à la loi « informatique et libertés » du 6 janvier 1978 modifiée, vous disposez d'un droit d'interrogation d'accès, de rectification, d’effacement, de portabilité et de limitation du traitement des données vous concernant ainsi que du droit de communiquer des directives sur le sort de vos données après votre mort. Vous avez également la possibilité de vous opposer au traitement des données vous concernant pour motifs légitimes. Vous pouvez exercer ce droit par courrier électronique adressé à: service.communication@immodefrance.com ou par courrier PROCIVIS Immobilier 87 Quai Panhard et Levassor 75013 PARIS, accompagné d'une copie d'un titre d'identité. Par ailleurs, si vos coordonnées téléphoniques ont été recueillies, vous pouvez vous inscrire sur la liste d’opposition au démarchage téléphonique prévue en faveur des consommateurs par l’article L223-1 du code de la consommation. Pour plus d'informations consulter nos Mentions légales

Nous vous accompagnons pour réaliser
au mieux votre projet immobilier

Carpentier Immobilier

Voie de la Nation

27100 - Val-de-Reuil

Horaires, équipes Nous appeler Nous contacter Localiser l'agence
t Alerte mail j Simulateur de prêt
cookie