Attention aux piratages ! Gardez à l’esprit qu’aucune de nos agences ne vous demandera de payer pour vous faire visiter un bien. En cas de doutes, contacter directement nos agences par téléphone.

3
Estimer mon bien tæ
Accueil > Acheter >

Vente appartement 3 pièces 83.09 m² à Cabourg (14390)

< Revenir à la page précédente
< Précédente Annonce Suivante >

Appartement 3 pièces à vendre

Cabourg (14390) | Réf. : 10-12173 | N° 10-12173

Prix de vente : 599 900 €

Honoraires à charge vendeur

Calcul du financement

S
2 chambres

U
1 salle de bain

7
83.09 m²

1
1 parking

Exclusivité !
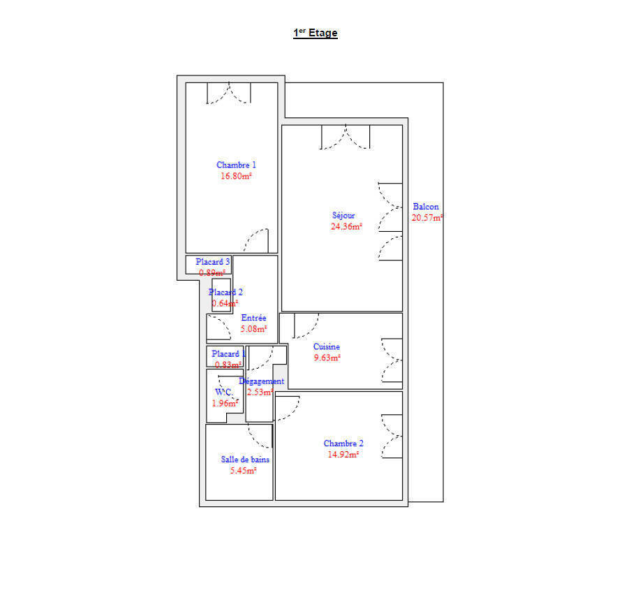
Au coeur de Cabourg, venez découvrir ce bel appartement de trois pièces principales situé dans une résidence de standing, sécurisée, avec ascenseur et gardien.
Il se compose d'une entrée avec placard, d'une salle de bains équipée à la fois d'une douche et d'une baignoire, d'un WC indépendant, de deux grandes chambres, d'une cuisine aménagée et équipée, ainsi que d'un spacieux salon/séjour.
Vous serez séduit par sa vue imprenable sur la mer et son grand balcon d'angle de 20,57 m², idéal pour profiter pleinement du cadre exceptionnel.
Une place de parking en sous-sol complète ce bien rare.

Situé dans un secteur recherché, à deux pas de la plage et des commerces, vous pourrez tout faire à pied.

Montant estimé des dépenses annuelles d'énergie pour un usage standard : entre 1770 euros et 2 440 euros par an - prix moyens des énergies indexés au 1° janvier 2021 (abonnement compris)
Les informations sur les risques auxquels ce bien est exposé sont disponibles sur le site Géorisques : www. georisques. gouv. fr

Copropriété de 311 lots - dont 153 lots habitation. (Pas de procédure en cours).

Charges annuelles : 2579.6 euros.
Surface habitable : 83.09 m²
Nbre de parking : 1
Type chauffage : Mixte

Infos copropriété

Nbre de lots : 311
Charges prévisionnelles : 2 580 € / an
Les informations sur les risques auxquels ce bien est exposé sont disponibles sur le site Géorisques : www.georisques.gouv.fr

Diagnostic de performance énergétique

E
v Date de réalisation : 24/07/2025
Classe énergie
E
279 kWh/m².an
Classe climat
B
9 kg CO2/m².an

Estimation des coûts annuels d’énergie du logement
Entre 1 770 € et 2 440 € par an
Prix moyens des énergies indexés sur l'année 0 (abonnements compris)

Prix de vente : 599 900 €

Honoraires à charge vendeur

Calcul du financement

S
2 chambres

U
1 salle de bain

7
83.09 m²

1
1 parking

Nous appeler
Abonnez-vous à nos offres spéciales investisseurs

Localisation & services de proximité

Nous contacter pour ce bien
Laissez-nous vos coordonnées

J'envisage aussi de mettre un bien à la vente

Obtenir une estimation
J’accepte de recevoir des informations sur l’immobilier, les nouvelles réglementations et les nouvelles offres et produits personnalisés de IMMO de France**.

Si vous cochez non, vous indiquez que vous ne souhaitez pas recevoir de lettre d’information sur l'actualité de l’immobilier, les offres et produits du réseau IMMO de France

En cliquant sur Envoyer vous acceptez de recevoir des informations concernant le bien présenté ci-dessus et des offres similaires susceptibles de vous intéresser.

*Champs obligatoires
**Recueil de vos informations personnelles afin de pouvoir gérer la relation client et apporter conseils et informations complémentaires au niveau de la marque IMMO de France et le cas échéant au niveau des partenaires et prestataires. Les données transmises via ce formulaire sont destinées uniquement au personnel de IMMO de France et sont conservées pour une durée n’excédant pas celle nécessaire à la réalisation des finalités précitées.
Conformément au Règlement européen n°2016/679/UE du 27 avril 2016 sur la protection des données personnelles et à la loi « informatique et libertés » du 6 janvier 1978 modifiée, vous disposez d'un droit d'interrogation d'accès, de rectification, d’effacement, de portabilité et de limitation du traitement des données vous concernant ainsi que du droit de communiquer des directives sur le sort de vos données après votre mort. Vous avez également la possibilité de vous opposer au traitement des données vous concernant pour motifs légitimes. Vous pouvez exercer ce droit par courrier électronique adressé à: service.communication@immodefrance.com ou par courrier PROCIVIS Immobilier 87 Quai Panhard et Levassor 75013 PARIS, accompagné d'une copie d'un titre d'identité. Par ailleurs, si vos coordonnées téléphoniques ont été recueillies, vous pouvez vous inscrire sur la liste d’opposition au démarchage téléphonique prévue en faveur des consommateurs par l’article L223-1 du code de la consommation. Pour plus d'informations consulter nos Mentions légales

Nous vous accompagnons pour réaliser
au mieux votre projet immobilier

Gilbert Pierre Immobilier Cabourg

57, avenue de la Mer

14390 - Cabourg

Horaires, équipes Nous appeler Nous contacter Localiser l'agence
t Alerte mail j Simulateur de prêt
cookie