Attention aux piratages ! Gardez à l’esprit qu’aucune de nos agences ne vous demandera de payer pour vous faire visiter un bien. En cas de doutes, contacter directement nos agences par téléphone.

3
Estimer mon bien tæ
Accueil > Acheter >

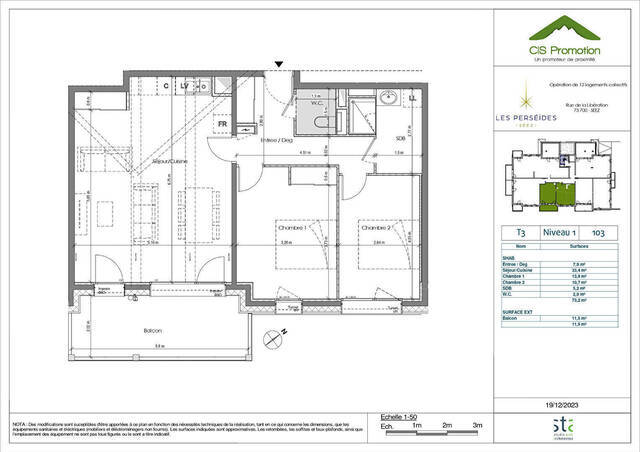
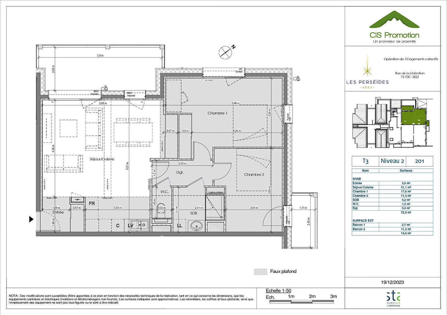
Vente appartement 3 pièces 72 m² à Séez (73700)

< Revenir à la page précédente
< Précédente Annonce Suivante >

Appartement 3 pièces à vendre

Séez (73700) | Réf. : 4324

Prix de vente : 427 000 €

Honoraires à charge vendeur

Calcul du financement

S
2 chambres

U
1 salle de bain

7
72 m²

Appartement 3pièces au dernier étage, avec de beaux volumes sous plafond dans le séjour et sa charpente apparente.

Résidence intimiste - seulement 12 logements pour un cadre privilégié.

Cet appartement familial de 72,0m² dispose d'un beau séjour lumineux et de deux balcons exposés.
Il se compose de :
- Entrée (3,0 m²) ;
- Séjour / cuisine ouverte de 31,1 m², lumineux grâce à sa double ouverture sur un grand balcon (11,3 m²) exposé Ouest ;
- D'une première chambre, Suite parentale (17,6 m²) avec placards de rangement intégrés ;
- D'une seconde chambre (11,3 m²) avec un balcon (2,7 m²)
- D'une salle de bain familiale (4,2 m²) ;
- D'un WC indépendant ;
- Dégagement (3,4 m²) optimisant la distribution des pièces ;
- Cave privative ;
- Garages et/ou Parking en option.

Les atouts de la résidence :
- Performance énergétique et confort optimal ;
- Ascenseur pour plus de confort au quotidien ;
- Garages, caves et local à vélos ;
- Pompe à chaleur et chauffage au sol dans les pièces de vie et chambres ;
- Parcelles de jardin potager offertes aux résidents.


La résidence est idéalement situé, à quelques minutes de Bourg Saint Maurice et des stations de la Haute Tarentaise.
Idéal pour un acquéreur en résidence principale à la recherche d'un cadre de vie agréable, moderne et durable, en plein centre de Séez.
Copropriété de 12 lots - dont 12 lots habitation. (Pas de procédure en cours).

Charges annuelles : 1 euros.
Surface habitable : 72 m²
Surface séjour : 31.1 m²
Type chauffage : Individuel

Infos copropriété

Nbre de lots : 12
Charges prévisionnelles : 1 € / an

Diagnostic des performances énergétiques du bien

En attente du nouveau DPE

Prix de vente : 427 000 €

Honoraires à charge vendeur

Calcul du financement

S
2 chambres

U
1 salle de bain

7
72 m²

Nous appeler
Abonnez-vous à nos offres spéciales investisseurs

Localisation & services de proximité

D'autres 3 pièces à Séez

Vente appartement 3 pièces 73.2 m² à Séez (73700)

406 000 € - 2 chambres - Séez

Appartement - 3 pièces
Séez

Prix de vente : 406 000 €

Honoraires à charge vendeur

Appartement - 3 pièces
Séez (73700)
Vente appartement 3 pièces 72 m² à Séez (73700)

417 000 € - 2 chambres - Séez

Appartement - 3 pièces
Séez

Prix de vente : 417 000 €

Honoraires à charge vendeur

Appartement - 3 pièces
Séez (73700)
Vente appartement 3 pièces 73.2 m² à Séez (73700)

411 000 € - 2 chambres - Séez

Appartement - 3 pièces
Séez

Prix de vente : 411 000 €

Honoraires à charge vendeur

Appartement - 3 pièces
Séez (73700)

Nous contacter pour ce bien
Laissez-nous vos coordonnées

J'envisage aussi de mettre un bien à la vente

Obtenir une estimation
J’accepte de recevoir des informations sur l’immobilier, les nouvelles réglementations et les nouvelles offres et produits personnalisés de IMMO de France**.

Si vous cochez non, vous indiquez que vous ne souhaitez pas recevoir de lettre d’information sur l'actualité de l’immobilier, les offres et produits du réseau IMMO de France

En cliquant sur Envoyer vous acceptez de recevoir des informations concernant le bien présenté ci-dessus et des offres similaires susceptibles de vous intéresser.

*Champs obligatoires
**Recueil de vos informations personnelles afin de pouvoir gérer la relation client et apporter conseils et informations complémentaires au niveau de la marque IMMO de France et le cas échéant au niveau des partenaires et prestataires. Les données transmises via ce formulaire sont destinées uniquement au personnel de IMMO de France et sont conservées pour une durée n’excédant pas celle nécessaire à la réalisation des finalités précitées.
Conformément au Règlement européen n°2016/679/UE du 27 avril 2016 sur la protection des données personnelles et à la loi « informatique et libertés » du 6 janvier 1978 modifiée, vous disposez d'un droit d'interrogation d'accès, de rectification, d’effacement, de portabilité et de limitation du traitement des données vous concernant ainsi que du droit de communiquer des directives sur le sort de vos données après votre mort. Vous avez également la possibilité de vous opposer au traitement des données vous concernant pour motifs légitimes. Vous pouvez exercer ce droit par courrier électronique adressé à: service.communication@immodefrance.com ou par courrier PROCIVIS Immobilier 87 Quai Panhard et Levassor 75013 PARIS, accompagné d'une copie d'un titre d'identité. Par ailleurs, si vos coordonnées téléphoniques ont été recueillies, vous pouvez vous inscrire sur la liste d’opposition au démarchage téléphonique prévue en faveur des consommateurs par l’article L223-1 du code de la consommation. Pour plus d'informations consulter nos Mentions légales

Nous vous accompagnons pour réaliser
au mieux votre projet immobilier

CIS Immobilier Les Arcs 1800

Place du Miravidi

73700 - Arc 1800

Horaires, équipes Nous appeler Nous contacter Localiser l'agence
t Alerte mail j Simulateur de prêt
cookie