Attention aux piratages ! Gardez à l’esprit qu’aucune de nos agences ne vous demandera de payer pour vous faire visiter un bien. En cas de doutes, contacter directement nos agences par téléphone.

3
Estimer mon bien tæ
Accueil > Acheter >

Vente appartement t2 48 m² à La Roche-sur-Yon (85000) -

< Revenir à la page précédente
< Précédente Annonce Suivante >

Appartement 2 pièces à vendre

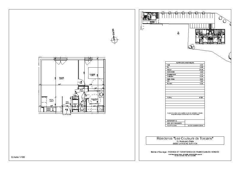
La Roche-sur-Yon (85000) - - | Réf. : RV519_0.01B

Prix de vente : 115 000 € HAI

Prix de vente honoraires exclus : 115 000 €
Honoraires à charge acquéreur

Calcul du financement

S
1 chambre

U
1 salle de bain

£
1 salle d'eau

7
48 m²

1
1 parking

PAS DE FRAIS D'AGENCE ! FRAIS DE NOTAIRE REDUITS ! Dans une copropriété en cours de constitution : A proximité du centre ville, venez découvrir cet appartement de type 2 d¿environ 47m2 situé au rdc avec ascenseur. Il comprend : une entrée avec placard, une cuisine ouverte sur un séjour, un dégagement, un wc, une chambre et une salle de douche. Place de stationnement. PRIX DE VENTE : 115.000 euros hors frais de notaire Appartement soumis au statut de la copropriété composée de 33 lots principaux, en cours de constitution. Montant moyen annuel de la quote-part du budget prévisionnel : 1080 euros Aucune procédure de copropriété en difficulté ou en état de carence. Ouvert à tous, priorité aux locataires et gardiens de parcs sociaux du Département. Modalités de visite : : sur rendez-vous au 02.35.22.17.50 Modalités de remise des offres d'achat : dossier complet par mail à contact-vente-normandie@groupecif.com ou remis en main propre Date limite de remise des offres : 08/12/2025 à 18h00
Surface habitable : 48 m²
Surface séjour : 25 m²
Surface carrez : 48.16 m²
Nbre de parking : 1

Diagnostic de performance énergétique

D
v Date de réalisation : 17/07/2025
Classe énergie
D
219 kWh/m².an
Classe climat
B
6 kg CO2/m².an

Estimation des coûts annuels d’énergie du logement
Entre 890 € et 1 250 € par an
Prix moyens des énergies indexés sur l'année 0 (abonnements compris)

Prix de vente : 115 000 € HAI

Prix de vente honoraires exclus : 115 000 €
Honoraires à charge acquéreur

Calcul du financement

S
1 chambre

U
1 salle de bain

£
1 salle d'eau

7
48 m²

1
1 parking

Nous appeler
Abonnez-vous à nos offres spéciales investisseurs

Localisation & services de proximité

Biens similaires

Appartement - 3 pièces
La Roche-sur-Yon (85000)
Appartement - 3 pièces
La Roche-sur-Yon (85000)

Nous contacter pour ce bien
Laissez-nous vos coordonnées

J'envisage aussi de mettre un bien à la vente

Obtenir une estimation
J’accepte de recevoir des informations sur l’immobilier, les nouvelles réglementations et les nouvelles offres et produits personnalisés de IMMO de France**.

Si vous cochez non, vous indiquez que vous ne souhaitez pas recevoir de lettre d’information sur l'actualité de l’immobilier, les offres et produits du réseau IMMO de France

En cliquant sur Envoyer vous acceptez de recevoir des informations concernant le bien présenté ci-dessus et des offres similaires susceptibles de vous intéresser.

*Champs obligatoires
**Recueil de vos informations personnelles afin de pouvoir gérer la relation client et apporter conseils et informations complémentaires au niveau de la marque IMMO de France et le cas échéant au niveau des partenaires et prestataires. Les données transmises via ce formulaire sont destinées uniquement au personnel de IMMO de France et sont conservées pour une durée n’excédant pas celle nécessaire à la réalisation des finalités précitées.
Conformément au Règlement européen n°2016/679/UE du 27 avril 2016 sur la protection des données personnelles et à la loi « informatique et libertés » du 6 janvier 1978 modifiée, vous disposez d'un droit d'interrogation d'accès, de rectification, d’effacement, de portabilité et de limitation du traitement des données vous concernant ainsi que du droit de communiquer des directives sur le sort de vos données après votre mort. Vous avez également la possibilité de vous opposer au traitement des données vous concernant pour motifs légitimes. Vous pouvez exercer ce droit par courrier électronique adressé à: service.communication@immodefrance.com ou par courrier PROCIVIS Immobilier 87 Quai Panhard et Levassor 75013 PARIS, accompagné d'une copie d'un titre d'identité. Par ailleurs, si vos coordonnées téléphoniques ont été recueillies, vous pouvez vous inscrire sur la liste d’opposition au démarchage téléphonique prévue en faveur des consommateurs par l’article L223-1 du code de la consommation. Pour plus d'informations consulter nos Mentions légales

Nous vous accompagnons pour réaliser
au mieux votre projet immobilier

CIF Services

11 rue basse porte

44000 - Nantes

Horaires, équipes Nous appeler Nous contacter Localiser l'agence
t Alerte mail j Simulateur de prêt
cookie