Attention aux piratages ! Gardez à l’esprit qu’aucune de nos agences ne vous demandera de payer pour vous faire visiter un bien. En cas de doutes, contacter directement nos agences par téléphone.

3
Estimer mon bien tæ
Accueil > Acheter >

Vente appartement 3 pièces 72.63 m² à Sallanches (74700)

< Revenir à la page précédente
< Précédente Annonce Suivante >

Appartement 3 pièces à vendre

Sallanches (74700) | Réf. : DMV1310150479 | N° 8007

Prix de vente : 292 500 €

Honoraires à charge vendeur

Calcul du financement

S
2 chambres

U
1 salle de bain

7
72.63 m²

1
2 parkings

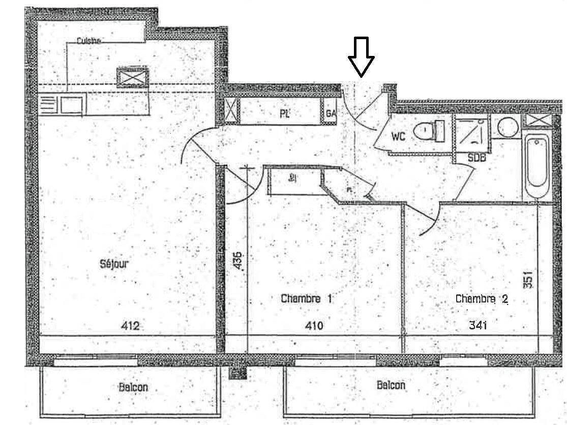
Appartement 3 pièces de 72,6m2 avec balcons à vendre sur le coteau de Sallanches
Le bien est composé d'une entrée avec placards, un vaste séjour de 30m2 avec cuisine ouverte donnant sur un balcon côté Est avec une vue magnifique sur le Mont-Blanc, 2 grandes chambres dont une avec balcon, une salle de bains avec baignoire et douche, et un wc séparé.
Une cave et un garage complètent le bien.
Les charges comprennent tous les frais afférents à la copropriété avec l'eau froide, l'eau chaude et le chauffage au gaz.
Copropriété de 2007 avec ascenseur et parking collectif, à deux pas du centre-ville.
A visiter au plus vite !
Surface habitable : 72.63 m²
Surface séjour : 30.89 m²
Surface carrez : 72.78 m²
Nbre de parking : 1
Nbre de garage : 1
Type chauffage : CENTRAL
Taxe foncière : 911 €

Infos copropriété

Nbre de lots : 89
Charges prévisionnelles : 2 300 € / an
Les informations sur les risques auxquels ce bien est exposé sont disponibles sur le site Géorisques : www.georisques.gouv.fr

Diagnostic de performance énergétique

C
v Date de réalisation : 27/04/2022
Classe énergie
C
136 kWh/m².an
Classe climat
C
27 kg CO2/m².an

Estimation des coûts annuels d’énergie du logement
Entre 626 € et 846 € par an
Prix moyens des énergies indexés sur l'année 2021 (abonnements compris)

Prix de vente : 292 500 €

Honoraires à charge vendeur

Calcul du financement

S
2 chambres

U
1 salle de bain

7
72.63 m²

1
2 parkings

Nous appeler
Abonnez-vous à nos offres spéciales investisseurs

Localisation & services de proximité

Biens similaires

Appartement - 2 pièces
Sallanches (74700)
Appartement - 4 pièces
Sallanches (74700)
Appartement - 4 pièces
Sallanches (74700)

Nous contacter pour ce bien
Laissez-nous vos coordonnées

J'envisage aussi de mettre un bien à la vente

Obtenir une estimation
J’accepte de recevoir des informations sur l’immobilier, les nouvelles réglementations et les nouvelles offres et produits personnalisés de IMMO de France**.

Si vous cochez non, vous indiquez que vous ne souhaitez pas recevoir de lettre d’information sur l'actualité de l’immobilier, les offres et produits du réseau IMMO de France

En cliquant sur Envoyer vous acceptez de recevoir des informations concernant le bien présenté ci-dessus et des offres similaires susceptibles de vous intéresser.

*Champs obligatoires
**Recueil de vos informations personnelles afin de pouvoir gérer la relation client et apporter conseils et informations complémentaires au niveau de la marque IMMO de France et le cas échéant au niveau des partenaires et prestataires. Les données transmises via ce formulaire sont destinées uniquement au personnel de IMMO de France et sont conservées pour une durée n’excédant pas celle nécessaire à la réalisation des finalités précitées.
Conformément au Règlement européen n°2016/679/UE du 27 avril 2016 sur la protection des données personnelles et à la loi « informatique et libertés » du 6 janvier 1978 modifiée, vous disposez d'un droit d'interrogation d'accès, de rectification, d’effacement, de portabilité et de limitation du traitement des données vous concernant ainsi que du droit de communiquer des directives sur le sort de vos données après votre mort. Vous avez également la possibilité de vous opposer au traitement des données vous concernant pour motifs légitimes. Vous pouvez exercer ce droit par courrier électronique adressé à: service.communication@immodefrance.com ou par courrier PROCIVIS Immobilier 87 Quai Panhard et Levassor 75013 PARIS, accompagné d'une copie d'un titre d'identité. Par ailleurs, si vos coordonnées téléphoniques ont été recueillies, vous pouvez vous inscrire sur la liste d’opposition au démarchage téléphonique prévue en faveur des consommateurs par l’article L223-1 du code de la consommation. Pour plus d'informations consulter nos Mentions légales

Nous vous accompagnons pour réaliser
au mieux votre projet immobilier

4807 Immobilier Sallanches

158, Place Charles-Albert

74700 - Sallanches

Horaires, équipes Nous appeler Nous contacter Localiser l'agence
t Alerte mail j Simulateur de prêt
cookie